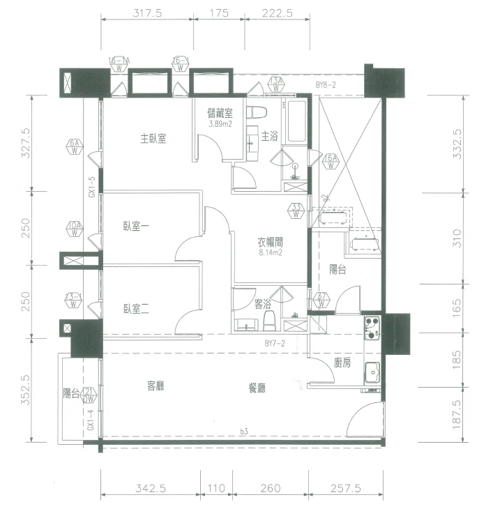
這次和各位朋友介紹在介紹一間新釋出的《新美齊画世代》朝西大四房:B2戶6樓|售價4300萬。本戶有客變,方向大概是:
- 臥室、次臥隔間範圍向外調整25公分,讓房間放大。
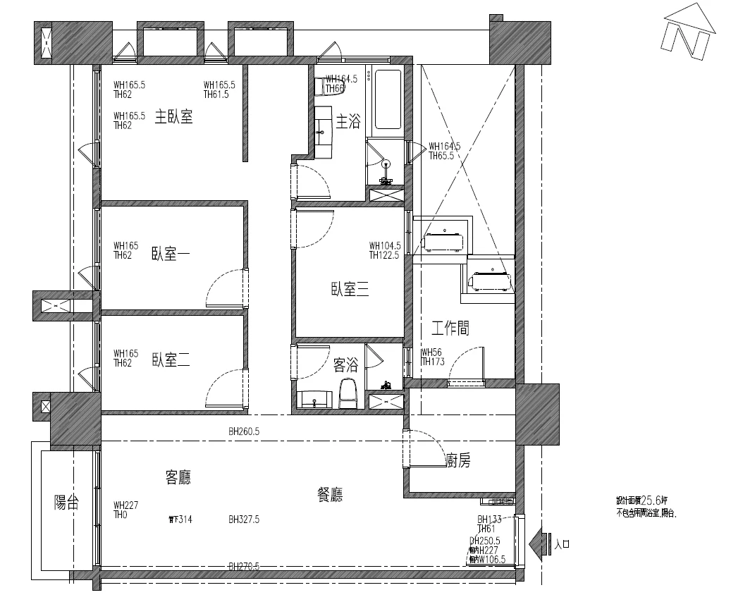
- 主臥內原衣帽間功能更改為儲藏室
- 原臥室3功能更改為衣帽間,規劃完整一間房為衣帽間
- 廚房隔間範圍調整及木門開向也變更,廚具整體也加項進行升級
交易模式採成屋預簽方式,自備款付款輕鬆僅需10%即可訂下。目前屋主已於八月份已進行第一次驗屋,預計11月份複驗,12月份第一批次交屋!
日前同社區的頂樓戶(B3-24樓)賀成交單坪78萬,是自5月底換約截止以來的成屋第一筆交易也是突破3房二手交易的實登新高。就像此前和各位朋友分享「全板橋之預售案或新屋成交總價已呈現1房1500、2房2500、3房3500的分布態勢」個人觀點而言,新美齊画世代的向上突破潛力值得期待!
本間B2-6樓大四房格局,售價4300萬(單坪79.49萬/坪),總價、單價皆為全社區最超值!
以2024年大陸營造於板橋的聲望和成交實例,我認為新美齊目前的行情仍屬低檔凹陷區,畢竟距離700公尺遠的《大陸建設 耑芃》實價登陸年均價為90.25萬/坪,最高102.98萬/坪的成交實績;同樣也是大陸工程出品的《新美齊画世代》現階段委售案源多數定價85萬/坪,更何況市場上相似坪數3房不論新舊,放到市中心都是見8望9的價格水位,回頭來看本間總、單價真的挺佛心的!有興趣的朋友歡迎聯繫光盈,備有完整資料供參閱,謝謝!
▍社區 | 新美齊画世代
▍戶別 | B2-6樓
▍權狀 | 57.97坪
▍樓層 | 6樓/24樓
▍售價 | 4300萬
大陸工程×新美齊雙強聯合精鑄打造府中地標建築
SRC & RC構造×101等級用鋼筋 & SA續接器,震守心愛的家
挑高3.5米×無梁版系統加持,室內舒適又大器
2449坪壯闊大基地、全齡化公設服務,回家就像入住五星級飯店
社區位置
球型環景
物件資訊

平面圖
格局圖




車位位置圖

房屋實景照
聯絡經紀人
LINE快速拿資料
https://line.me/ti/p/cbUbAxb_7B
電話詢問
0987-312-659 劉光盈
___________________________
網路商店▸更多精選好房
https://m.591.com.tw/v2/userCenter/digital-card/2678
粉絲專頁▸更多房產知識
https://www.facebook.com/rayliu0987312659
___________________________
按讚追蹤 歡迎光盈板橋 掌握最新資訊
好房精選推薦
地產最新新聞
建築人文故事
在地大小城事
室內設計美學
給您最新房市精彩內容
___________________________
【內政部不動產字號】
◎經紀業名稱 | 子冠不動產經紀有限公司
◎經紀人字號 | 張有林 (98)北縣字第001930號
◎營業員字號 | 劉光盈 (110)登字第385602號
收費標準|買方2% 賣方4% 有價值、用心的服務需要收費才能永續經營


























