銷售物件

本週神案推薦-立川琚|A7-17樓|錯過不再的誠意之作

  這次光盈要為大家介紹的是位於江翠北側 F 區的指標建案「立川琚」。 這間 A7-17 樓的河景三房,不只是物件釋出,更是一次難得的入主機會!

🏠 物件亮點

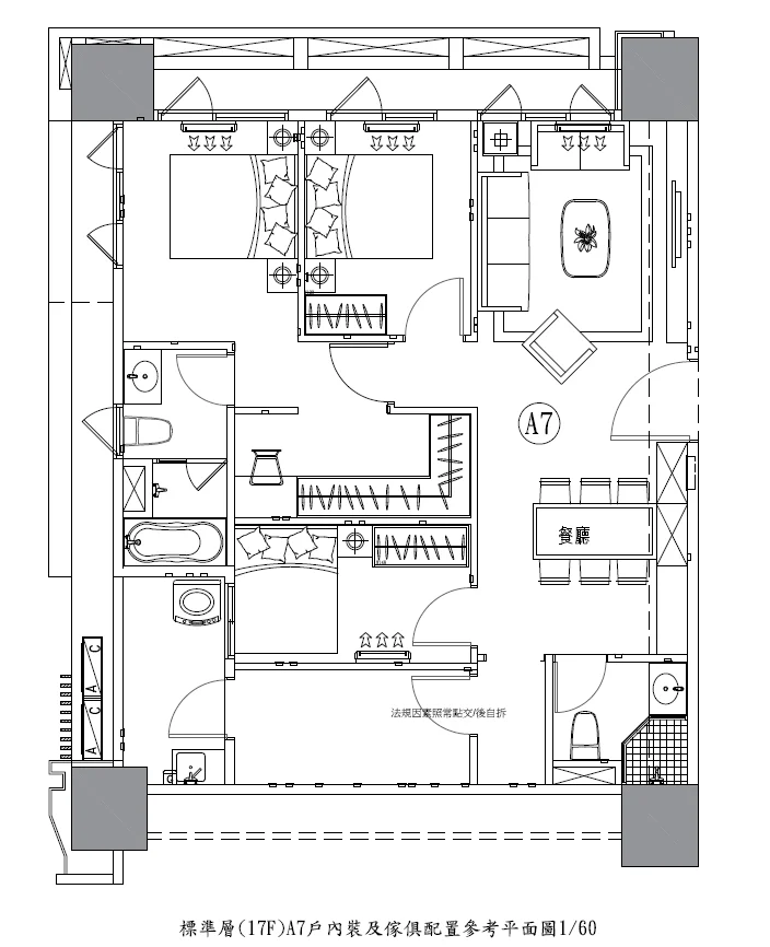
屋主有小客變,但完美結合空間與景觀,細節如下:

  • 餐廚空間:已退原廠廚具與壁磚,適合想打造開放式美式廚房或特殊風格的您。
  • 衛浴動線:調整客衛洗手台位置與開門方向,動線更流暢私密。
  • 收納升級:原 +1 房空間已規劃為大容量更衣室,機能性大增。

參考近期在售物件:

  • B2-21樓:售價 4330 萬
  • B7-22樓:售價 3980 萬
  • 本戶 A7-17F:誠意售價 3850 萬!

據光盈自己整理的社區在售圖,大家可以發現今天介紹的A7-17真的是裡面CP值最好的在售案!

📊 行情分享:

光盈整理了近期社區成交紀錄,目前高樓層河景戶行情已站穩 80-83 萬。具體成交行情如下:

  • 113.09|B7-20F|40.76P+B2車位|成交3623萬@82.7萬
  • 113.11|B7-14F|40.76P+B3車位|成交3550萬@81.8萬
  • 113.11|B2-14F|42.52P+B3車位|成交3650萬@80.8萬
  • 114.02|A7-19F|40.76P+B3車位|成交3650萬@83.4萬
  • 114.09|A7-17F|41.04P+B2車位|成交3500萬@79.45萬(有客變,廚具及廚房壁磚退掉。)
  • 114.12|A7-16F|41.04P+B4車位|成交3528萬@80.1萬(跨年成交)
  • 115.01|B1-14F|41.61P+B3車位|成交3638萬@81.42萬

  相信眼睛利的朋友們已經發現了!沒錯,光盈選擇誠實揭露,本戶於 114 年 9 月曾有成交紀錄!屋主實際取得成本為3588萬!大家一定會想問說為什麼又拿出來賣?因為屋主已在北市找到新居,目前這間確定「不留」,真心尋找下一位懂得這片美景的有緣人!回頭來看本間的總、單價對比目前高樓層在售案,真的非常具備競爭力!有興趣的朋友歡迎聯繫光盈,備有完整資料供參閱,謝謝!


▍社區 | 立川琚
▍戶別 | A7-17樓
▍權狀 | 49.95坪
▍樓層 | 17樓/22樓
▍售價 | 3850萬

📍 市售唯一A7高樓層河景戶稀有釋出!
📍 北市豪宅建商×新日鐵制震守護您的家
📍 GOOGLE MAP顯示距江子翠捷運6號出口約10分鐘
📍 全新未住屋主換屋誠意賣❤️

社區位置

球型環景

物件資訊

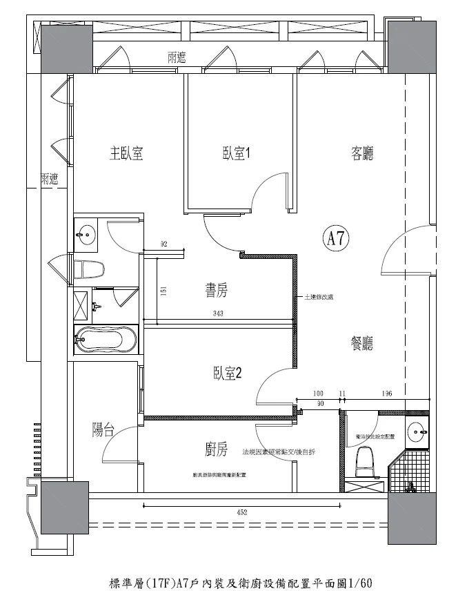
平面圖

格局圖

客變後圖面

車位位置圖

房屋實景照

  • Line Album 立川琚a7 17 260311 4
  • Line Album 立川琚a7 17 260311 3
  • Line Album 立川琚a7 17 260311 5
  • Line Album 立川琚a7 17 260311 6
  • Line Album 立川琚a7 17 260311 23
  • Line Album 立川琚a7 17 260311 2
  • Line Album 立川琚a7 17 260311 7
  • Line Album 立川琚a7 17 260311 8
  • Line Album 立川琚a7 17 260311 9
  • Line Album 立川琚a7 17 260311 1
  • Line Album 立川琚a7 17 260311 10
  • Line Album 立川琚a7 17 260311 11
  • Line Album 立川琚a7 17 260311 22
  • Line Album 立川琚a7 17 260311 20
  • Line Album 立川琚a7 17 260311 21
  • Line Album 立川琚a7 17 260311 19
  • Line Album 立川琚a7 17 260311 18
  • Line Album 立川琚a7 17 260311 15
  • Line Album 立川琚a7 17 260311 16
  • Line Album 立川琚a7 17 260311 14
  • Line Album 立川琚a7 17 260311 17
  • Line Album 立川琚a7 17 260311 13
  • Line Album 立川琚a7 17 260311 12

聯絡經紀人

🌐LINE快速拿資料

https://line.me/ti/p/cbUbAxb_7B

🌐電話詢問

0987-312-659 劉光盈

___________________________

🔍網路商店▸更多精選好房

591店鋪

🔍粉絲專頁▸更多房產知識

https://www.facebook.com/rayliu0987312659

___________________________

☑️按讚追蹤 歡迎光盈板橋 掌握最新資訊

ℹ️好房精選推薦
ℹ️地產最新新聞
ℹ️建築人文故事
ℹ️在地大小城事
ℹ️室內設計美學

給您最新房市精彩內容
___________________________

【內政部不動產字號】
◎經紀業名稱 | 子冠不動產經紀有限公司
◎經紀人字號 | 張有林 (98)北縣字第001930號
◎營業員字號 | 劉光盈 (110)登字第385602號

收費標準|買方2% 賣方4% 有價值、用心的服務需要收費才能永續經營

其他推薦文章

發佈留言

發佈留言必須填寫的電子郵件地址不會公開。 必填欄位標示為 *